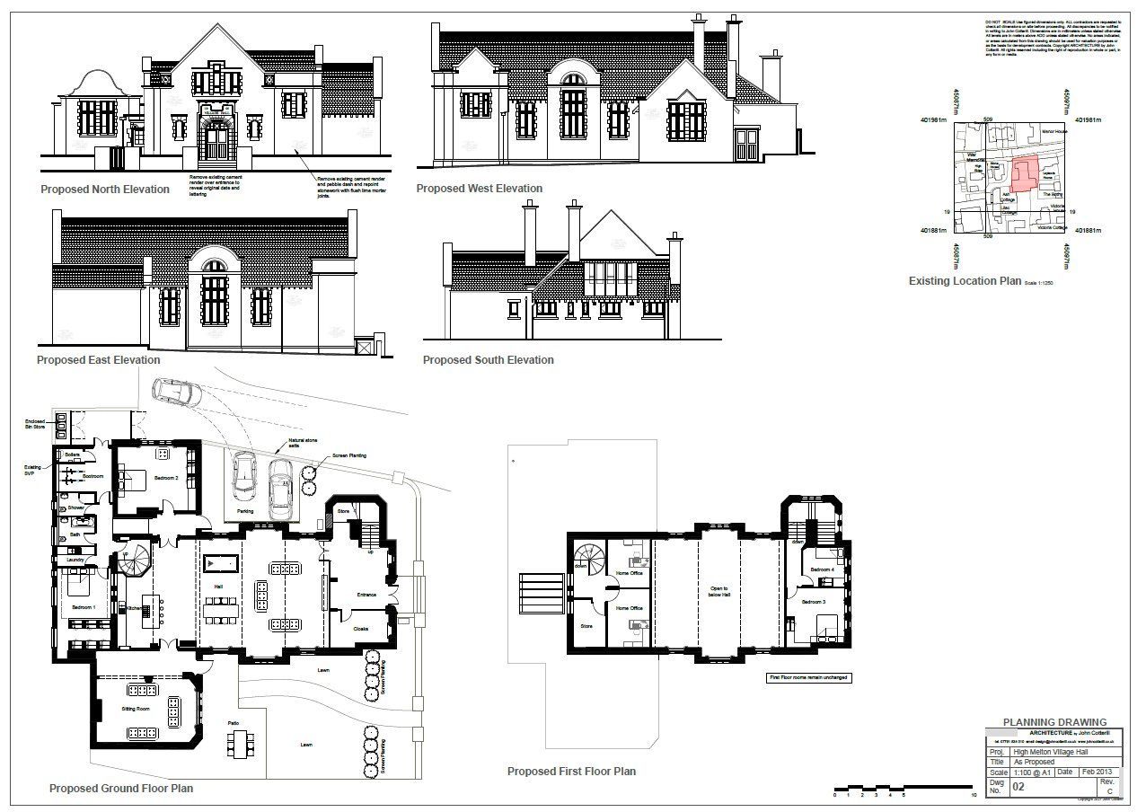
Conversion
It is not always feasible to maintain the existing use of a building. By converting an existing building into space that is in demand is the preferred option.
I have bee involved in projects as simple as Loft and garage conversions to conversion of agricultural barns through to full scale industrial mills converted for residential or mixed use schemes.





